При разработке чертежей дома все конструктивные элементы привязываются к осям. Сделать это необходимо для обеспечения точности строительства. Перед началом возведения здания требуется вынести оси на местность или разметить расположение фундаментов. Оба этих действия в общем случае выполняются по одинаковой схеме.
Работы по выносу осей
Все опорные конструкции дома при разработке проекта в обязательном порядке должны быть привязаны к осям. Для точного расположения фундаментов на местности потребуется правильно разбить участок под дом в соответствии с чертежами. Этот этап строительства выполняют в следующем порядке:
- Обозначение первой оси. В качестве ее выбирают крайнюю, расположенную параллельно забору или границе участка.
- От забора отмеряют две точки, на равном расстоянии. Линия, соединяющая эти отрезки, и является искомой.
- На этой линии потребуется сделать отметки точек пересечения с перпендикулярными осями дома. Условные оси изготавливают из шнура, прикрепляя его к обноске с помощью гвоздей. Она в самом простом случае представляет собой деревянные колья, забитые на некотором отдалении от предполагаемого котлована или траншеи.
- От каждой отмеченной точки необходимо построить прямой угол, который задаст направление осям. Чтобы сделать это пользуются методом египетского треугольника. Результатом завершения построений становится разбивка осей дома в одном направлении.
- Чтобы сделать разметку в перпендикулярном направлении, необходимо отложить от первой построенной оси линии на проектном расстоянии (также как откладывались отрезки от забора).
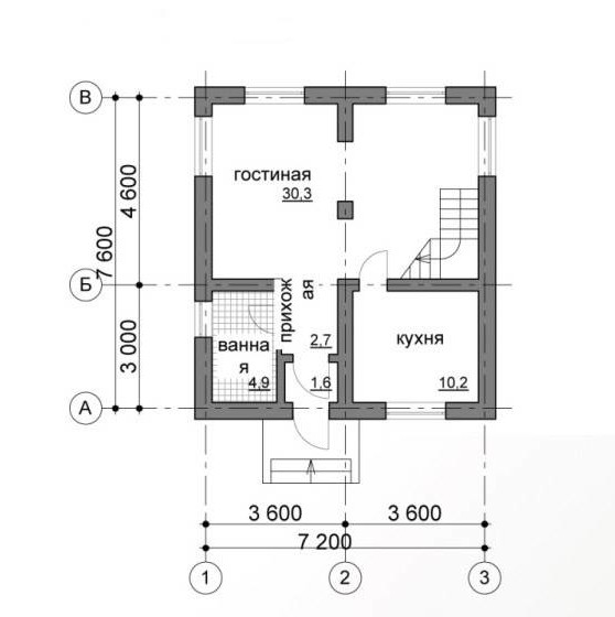
Объяснения без наглядного примера могут запутать, поэтому рассмотрен дом прямоугольный в плане (на рисунке ниже). Помимо наружных стен строение имеет две внутренние, расположенные под прямым углом. На чертеже обозначены шесть осей, по три в каждом направлении.


Построения начинаем с оси «А», которая располагается вдоль забора. Разметив ее расположение, отмечают на ней точки пересечения с осями «1», «2», «3». Методом египетского треугольника выстраивают прямые углы и выполняют разбивку остальных линий. Чтобы правильно вынести ось «Б» потребуется от оси «А» отложить два отрезка длиной 3 м (по линиям 1 и 3). Соединив концы отрезков, получаем искомую линию. Далее точно также выполняют разбивку «В», откладывая 4,6 м от «Б».
Совет! Если дом вписан на территории под углом, построения усложняются дополнительными геометрическими замерами, поэтому рекомендуется использовать более простую схему параллельно забору или границе участка.
Система осей удобна тем, что к ней привязаны все конструкции дома: фундаменты, стены, перекрытия, перегородки и тому подобное. Если выполнять разбивку граней опорной части (приведена далее) при работах «нулевого» цикла потребуются новые ориентиры.
Привязка осей к фундаменту (и стенам) может быть центральная, нулевая или двухсторонняя. В первом случае чтобы обозначить границы конструкции потребуется отложить половину ширины в каждую сторону. Во втором ось совпадает с одной из поверхностей фундамента. Третий вариант предполагает разные расстояния от оси до двух граней фундамента. На чертеже обозначаются обе величины.


Обозначение границ фундамента
При самострое чаще всего не разрабатывают проект, а рисуют эскиз или схему. В этом случае редко используют оси, поэтому шнуром обозначают границы фундаментов дома. Разметка подземной части выполняется по аналогии с осями:
- Определяют расположение стены дома, параллельной забору или границе участка, отмечают ее бечевкой. Устанавливают обноску, размещая ее на некотором расстоянии от стен здания, чтобы не мешала при разработке грунта. Этот элемент разметки изготавливается из вертикальных стоек и горизонтальных перемычек между ними.


Устройство обноски
- Отмечают на обноске точку первого угла дома. От этой точки натягивают шнур перпендикулярно первой стене. Построения должны быть точными, насколько позволяет выполнение работы «на глаз».


- Делают проверку прямого угла. Для этого от выбранной точки на одном шнуре откладывают расстояние равное 3 м, а на другом 4 м.
- Измеряют расстояние между концами отложенных отрезков. Важно сделать это с максимальной точностью.


- Если величина равна 5 м, шнур расположен верно, можно вместо него устанавливать деревянную обноску. Если совпадения нет, бечевку смещают до тех пор, пока гипотенуза треугольника не станет равняться 5 м.
- После достижения этого значения построение прямого угла завершено.


- На линии стены (п. 1), параллельной забору, отмечают второй угол дома и повторяют действия с пункта 2. Получают третью сторону.
- На второй стороне обноски отмечают третий угол и выполняют те же действия, что и в предыдущих случаях. Получают четвертую сторону дома.


- Далее необходимо сделать отметки на линиях 3 и 4, равные размерам здания в плане. Метки должны совпасть, но если этого не происходит, их совмещают.


- Построение разметки прямоугольного или квадратного дома завершено.
- Чтобы убедится в точности, измеряют диагонали получившейся фигуры. Они должны быть равны.


Важно! В пунктах 3, 4, 5 описан метод египетского треугольника, о котором говорилось ранее.
После завершения выноса наружных граней дома для разных типов фундамента под дом есть отличия в построениях. Чтобы выполнить работу правильно, нужно ознакомиться с ними.
Ленточный фундамент
На обноске закрепляют два шнура, обозначающие обе грани ленты. Первый уже протянут, после выполнения приведенных выше действий. Чтобы натянуть второй потребуется отложить расстояние равное ширине фундамента от имеющегося шнура. Работы проводят после разработки грунта.


Погрешность измерений нормируется СП «Геодезические работы в строительстве» и назначается равной 1 см. Необходимо выполнить разметку не только для наружных стен, но и для внутренних.
Плитный фундамент
Для этой конструкции нет необходимости выполнять дополнительные построения. Достаточно разметки наружных граней. При работе важно помнить, что плиту чаще всего заливают так, чтобы она выступала на 10 см за наружные стены.
Важно! При разметке требуется учитывать пожарные требования, которые регламентируют минимальное расстояние между соседними зданиями. Особенно они строги для деревянных строений. Более подробные величины разрывов можно узнать в СП 4.13130.2009 таблица 1. Также строение не должно выступать за красные линии, которые указываются в градостроительном плане. При возведении дома в сельской местности в качестве красных линий выступают дороги и проезды. Минимальное расстояние от первых до стен дома составляет 5 м, от вторых ? 3 м. Это актуально для всех типов фундаментов.
Столбчатый фундамент
Чтобы правильно вынести на местность расположение столбов или свай на обноске закрепляют две горизонтальные перемычки, одна над другой. Нижняя располагается в одном уровне с обрезом отдельных опор, а верхняя по обрезу ростверка. Работу выполняют в три этапа:
- Закрепляют шнуры на нижней перемычке обноски, расположение которых будет совпадать с центральными осями столбов или свай. Шаг равен шагу опорных конструкций. Из пересечений опускают отвес и отмечают точки бурения.
- Размеченные линии перемещаются к наружной грани фундаментов. Выполняют заливку.
- Следующий этап ? изготовление ростверка. Для закрепления бечевки используют верхнюю перемычку на обноске. Разметку выполняют так же, как для ленточных конструкций. Работа упрощается тем, что на обноске уже имеется гвоздь, обозначающий центральные оси фундаментов. Он этой точки можно отложить в обе стороны расстояние равное половине ширины ростверка и натянуть шнуры.
Работы по выносу размеров дома на местность могут осуществляться двумя приведенными выше способами:
- разбивка фундамента по осям;
- разбивка граней фундамента без использования осей.
Каждый из них имеет свои сложности и преимущества. Профессиональные строители используют первый метод. Непрофессионалу, стоящему свой дом, будет проще понять и применить второй.